Ordos 100 Villa —
Inner Mongolia, China

Ordos 100 Villa —
Inner Mongolia, China

El emprendimiento se propone el desarrollo de 100 “villas” en la ciudad de Ordos, en la provincia china de Mongolia Interior. Fake Design, estudio del arquitecto y artista Ai Wei Wei elabora el master-plan e invita a Herzog & de Meuron para seleccionar a los 100 estudios de arquitectura que diseñaran cada uno una villa de 1000 m2.
Uno de los problemas más interesantes que plantean estos proyectos colectivos es el del diseño simultaneo de un grupo de edificios: al proyectar, el arquitecto no conoce aun a sus vecinos. Cada edificio debe ser diseñado entonces sin conocer su contexto pero con la obligación de conformar un sector coherente de ciudad: esto plantea un desafío tanto para el planificador como para el arquitecto.
Ubicación
Ordos, Inner Mongolia
Año
2008
Herzog & de Meuron - Tristan Dieguez, Axel Fridman
Leonardo Buffa, Maria Carranza, Daniel Natale, Julia Nowodworrski, Marcelo Savarro, Jazmin Zang
-
-
-
-

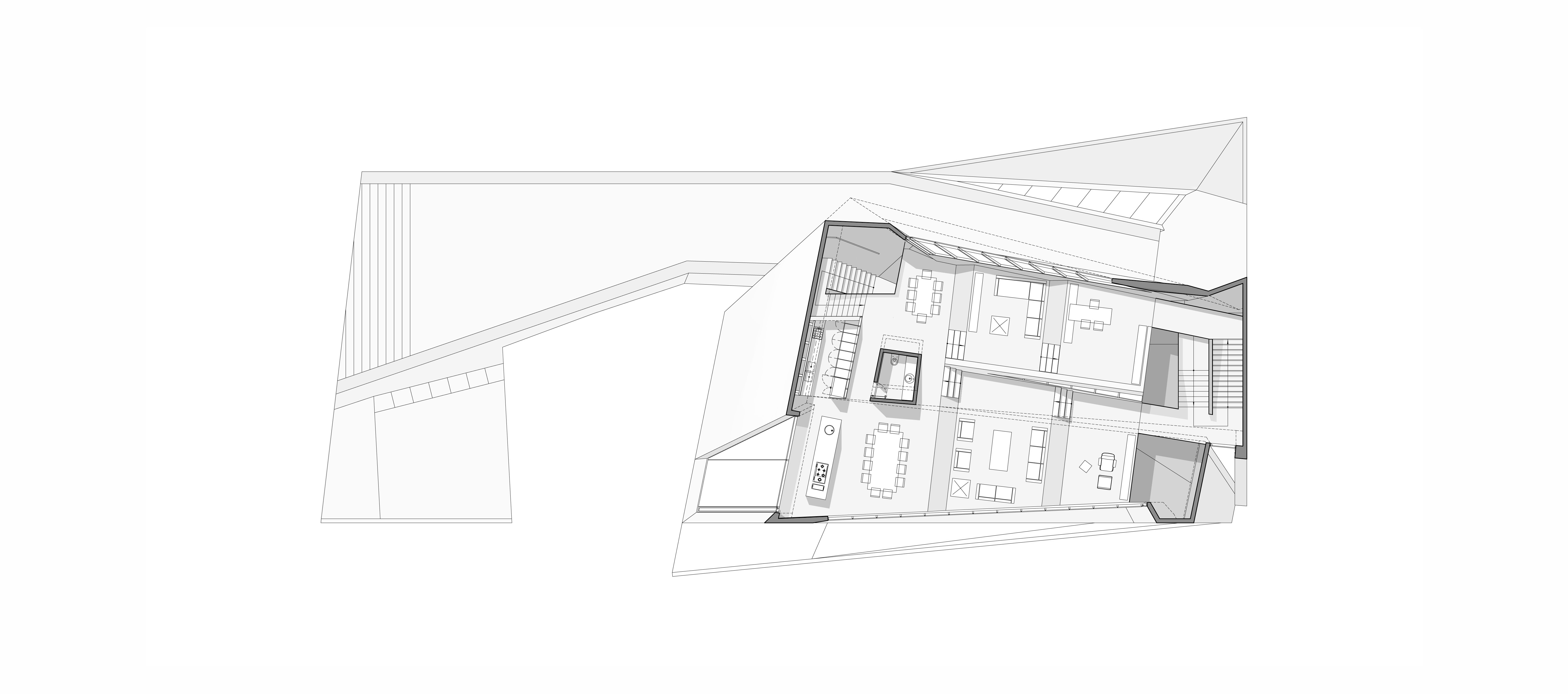
Ante la ausencia de contexto y de un habitante concreto aun para las casas, el programa se transformo en punto de partida para el proyecto: la primer pregunta que nos formulamos es que diferencia una casa cotidiana de una villa de esta escala. En una casa existe un espacio principal en el que se producen casi todos los encuentros (entre padres e hijos, habitantes de la casa y sus invitados, etc.) al que se asigna una ubicación privilegiada dentro de la organización general. Esta estructura jerárquica no se aplica en una villa de mayor escala, ya que hay múltiples lugares en el que estos encuentros pueden desarrollarse y que forman una especie de red de espacios públicos. El proyecto busca ofrecer distintas condiciones espaciales a estos diferentes lugares: aéreas semienterradas en contacto con el terreno pero protegidas de las vistas de vecinos, espacios verticales con vista al cielo y lugares elevados sobre la altura de las casas circundantes con vistas a un pequeño parque cercano. Al conectar estos diferentes espacios se genera en corte una forma continua con un vacío central que funciona como lugar de uso exterior y permite vistas a través del terreno a vecinos y visitantes.

-
-