Proyectos
(8)
Proyectos seleccionados
(10)
Vivienda colectiva
(5)
Vivienda unifamiliar
(5)
Oficina
(4)
Cultura y educación
(6)
Comercial
(2)
Interior
(32)
Todos
Estudio
Contacto
ESP
ENG
E-mail:
info@dieguezfridman.com
Instagram:
@dieguezfridman
BUENOS AIRES, ARGENTINA.
Proyecto anterior — Humboldt 1465
Siguiente proyecto — Bodega Finca Remota
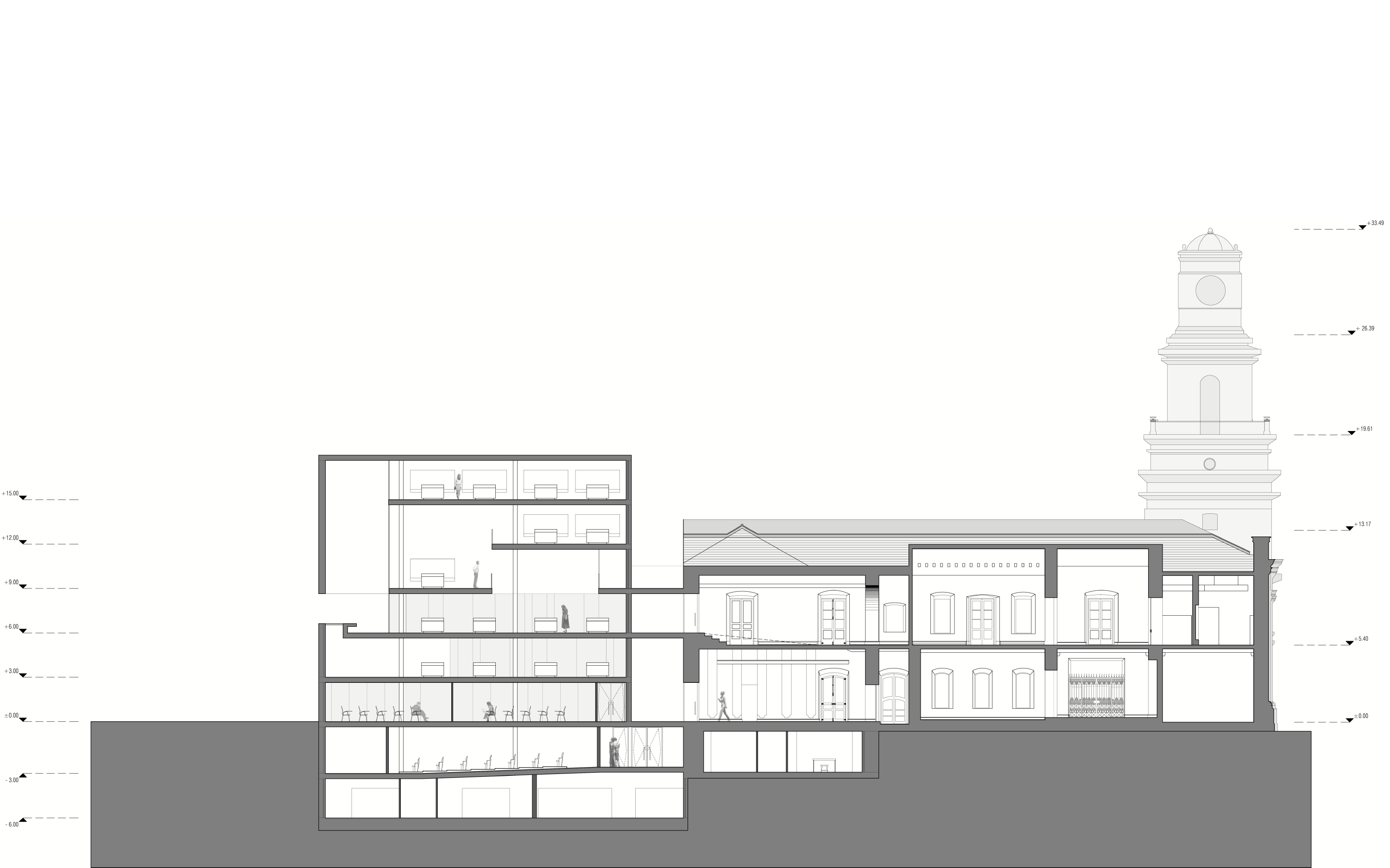
Museo Historico de Santiago —
Santiago, Chile
Museo Historico de Santiago —
Santiago, Chile
-
-
-
-
Proyecto anterior — Humboldt 1465
Siguiente proyecto — Bodega Finca Remota