Newbery 3364 —
Un paseo de la calle a la casa

Newbery 3364 —
Un paseo de la calle a la casa

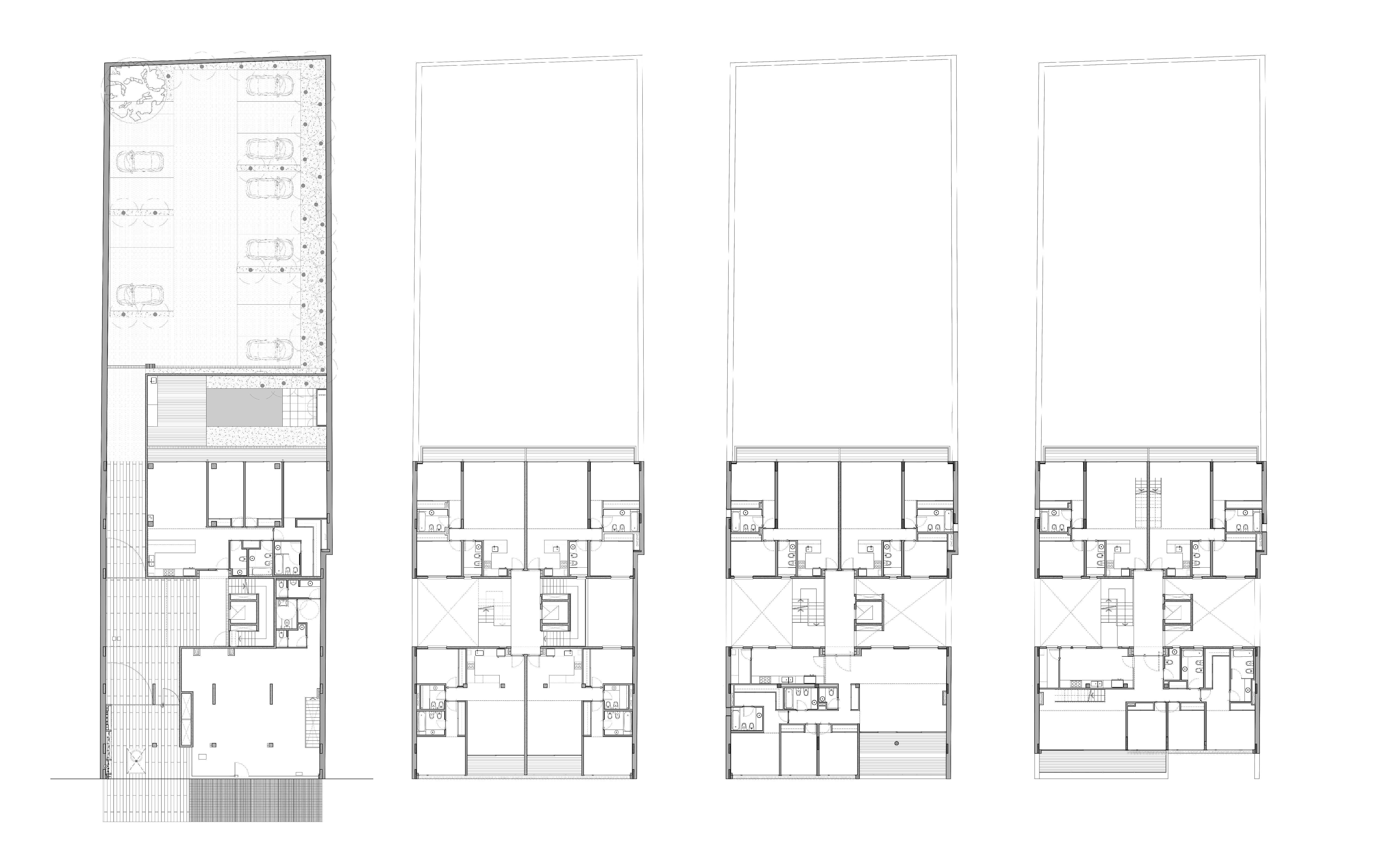
En un barrio residencial de Buenos Aires, el proyecto de este edificio de departamentos busca incorporar en sus viviendas distintos espacios, recorridos, situaciones y detalles propios de la arquitectura de las casas unifamiliares.
El proyecto se desarrolla en un terreno particular dentro de la trama casi siempre regular de Buenos Aires: justo frente al terreno, la calle Delgado termina en la calle Jorge Newbery. Esto abre la posibilidad que los espacios del frente aprovechen esta perspectiva larga y abierta e incorporen el paisaje de la calle en sus interiores.
.
.
.
-
-
El proyecto aprovecha esta particularidad, generando espacios intermedios entre interior y exterior- balcones, terrazas semicubiertas y terrazas descubiertas- desde las cuales disfrutar de esta vista. Estos espacios desarrollan la idea de vida al aire libre y de contacto con el verde en un barrio de la ciudad como Colegiales. Sirven como expansión de las funciones interiores y también como fuelle entre la intimidad del espacio doméstico y la vida urbana. Las unidades más grandes se piensan como casas en altura. Las circulaciones comunes por escaleras abiertas y puentes semicubiertos refuerzan esta idea de casas, ya que que el edificio se recorre por el exterior y solo se ingresa a un espacio interior al ingresar en cada unidad.
.
.
.
-
-

La fachada sobre la calle desarrolla el tema de los filtros entre los ámbitos público y privado. A través de parasoles verticales de aluminio que rotan por tramos, se resuelven los temas de seguridad, privacidad y asoleamiento. Y la rotación de distintos tramos, que cambia en el transcurso del día introduce dinamismo y escala doméstica en la fachada.

.
.
.
-
-